-2013-
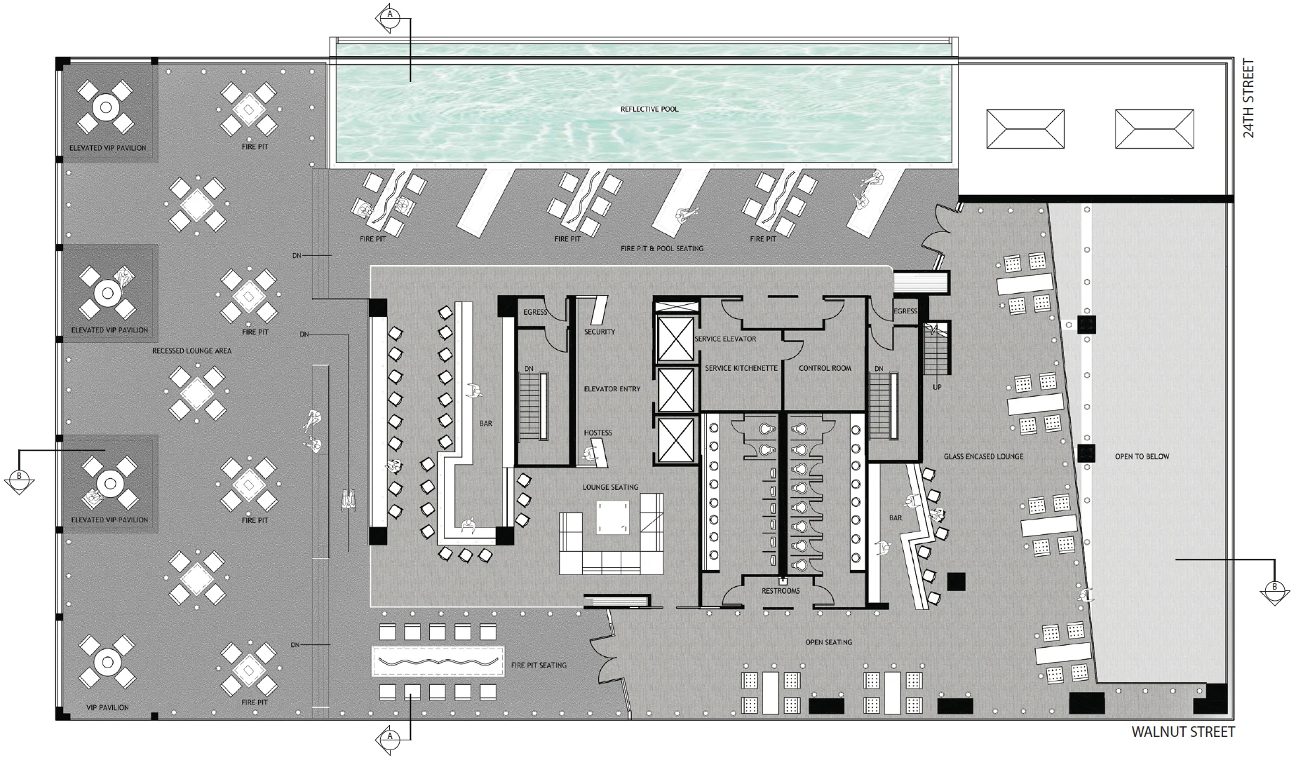
Located on the eighth floor and rooftop of 2401 Walnut Street in Philadelphia, PA ‘the pool at brio’ is a modern luxury bar | lounge | retaurant hot spot. Whether you just want to sit and enjoy the waterfront views of the city from the rooftop - or delve into a fabulous meal at the Japanese | American fusion restaurant in the penthouse of 2401 Walnut, brio is your venue.
What sets brio apart from the few rooftop venues in the philadelphia area is its infinity edge reflective pool, on the roof of this location. The atmosphere of this venue is greatly impacted by the contemporary water feature.
Fire pits, VIP pavilions, and the outdoor bar area all surround the reflective pool, creating an unforgettable atmosphere and experience. While weekends attract the majority of brio’s typical clientele; weekdays and nights are packed with guests visiting brio’s restaurant. Known for the state of the art raw Bar and Hibachi, brio is consistently busy with street traffic, tourists or private parties.
-click image to enlarge-
